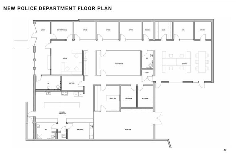
Concept plan for a potential remodeling of the Hood River Police Department, housed in the basement of city hall. All walls will be removed to reconfigure the space.
A rendering of a potential second story addition to Hood River City Hall that would not only increase space for city staff but include seismic upgrades that would make the building a hub in the event of an earthquake or other natural disaster.
Concept plan for a potential remodeling of the Hood River Police Department, housed in the basement of city hall. All walls will be removed to reconfigure the space.
HOOD RIVER — When Hood River City Police moved into the basement of city hall in 2010, they didn’t expect it to be for more than five years.
Now going on 15, the department is looking at a potential remodel that would include seismic upgrades to the entire building.
John Pete, FFA Architecture & Interiors, joined Police Chief Neal Holste at the Sept. 22 city council meeting to share a concept plan to enhance the department’s existing floor space.
They “really looked at how to maximize the daily functions downstairs to get the most out of it,” Pete said. “… There’s [also] an opportunity on the second floor to improve city hall spaces” with a second story addition.
The building is more than 100 years old — and was once the fire station. With that history comes several challenges, such as inadequate ventilation, insufficient evidence processing and storage space, and the lack of meeting and training rooms, Pete said. The building itself is also not seismically sound.
“It’s not a building the city can rely on in event of an earthquake [or] natural disaster — it’s not going to be a hub of operations,” he said.
Because the state provides grants for seismic improvements to first responder and essential facilities, the remodel is an opportunity to bring the building up to seismic standards at the same time; the second floor addition is part of that “shoring up.”
A rendering of a potential second story addition to Hood River City Hall that would not only increase space for city staff but include seismic upgrades that would make the building a hub in the event of an earthquake or other natural disaster.
Image courtesy FFA Architecture & Interiors
The total project budget is $8,678,158 and includes demo, seismic strengthening, first floor improvements (including a generator), city hall addition, and site improvements, with a 7% inflation rate factored in.
Councilor Grant Polson asked how the firm decided what to include in the plans; Pete said it came from several design meetings with the police department that considered multiple layouts. “This is more police operations [than] booking area,” he said, so it does not include holding cells or a sally port.
“This plan is the best option we have today,” Holste said in response to Councilor Anna Cavaleri asking his thoughts on the project. “… It definitely meets the needs, and it’s definitely a quicker fix than a potential long-term goal down the road [of a police station].”
Should that goal is realized, the space will not stay empty.
“If, 15 years from now, we had the ability and the means to build a police station, I believe that the work being done here would be easily flexible if we wanted to move other city services into that space,” City Administrator Abigail Elder said.
Commented
Sorry, there are no recent results for popular commented articles.