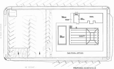
This schematic outlines the chosen design for the new White Salmon community swimming pool prior to the requested changes the council would like to see, such as having the exit of the changing rooms line up with the shallow end of the main pool.
This schematic outlines the chosen design for the new White Salmon community swimming pool prior to the requested changes the council would like to see, such as having the exit of the changing rooms line up with the shallow end of the main pool.
City pool consultant W.M. Smith Aquatics presented its schematics for the new pool at White Salmon City Council’s Aug. 1 meeting.
WMS representatives showed three plans modeled after pools in the north-central Washington communities of Tonasket and Twisp. The layouts were very similar. The main questions were whether the therapy pool and the main pool will be connected and what the size of the mechanical room/office/-bathrooms will be.
The council ultimately voted on a two-pool plan. One pool would have a 0 entry to 4-feet-deep therapy pool with significantly warmer water temperatures and a bench that could also be used to teach swimming lessons. The second, or main, pool would be 3.5 to 9 feet deep and be used for lane swimming and include a waterslide. The pools are not connected, like they are in other schematics, and will make it easier for the pool managers to regulate the water temperatures. The plan will also increase the size of the mechanical room, which will be connected to the changing areas and the main check-in office.
This design also includes covered areas to allow for shady spots where families can sit as well as the potential use for parties and events.
WMS recommended fixed shade structures as opposed to shade sails due to the high winds that come through the Gorge. Fixed shade structures can double as solar platforms to generate electricity for the pool. They also would allow for a future roof should the pool become a four-season facility.
The chosen design has open spaces for a potential splashpad/-play area for smaller children.
Prior to voting on the design, the council, as well as members of the audience at the meeting, made recommendations on slight changes they would like to see and expressed concerns they had as well.
In the original plan, the therapy pool was only going to be 0 entry to 3 feet deep, but a White Salmon resident said the typical depth of a therapy pool is 4 feet. The main concern about therapy pool depth was whether it would be too deep for beginning swimmers, which is where the addition of an 18-inch bench at the end of the pool helps. The council took that into consideration of alterations for WMS to make to the design.
Along those same lines, White Salmon resident Lloyd DeKay would like to see the main pool be 4-9 feet deep to meet the USA Swimming standards for competitive swimming pools. This generated the conversation on whether the pool should be focused on being a place for families or a place where competitions could be held. The council ultimately decided to leave that decision for the next meeting.
Another concern for residents was the orientation of the pool relative to the exits from the changing rooms. DeKay brought up how at the Hood River pool the changing room exits go right out to the deep end of the pool, presenting a danger to swimmers who are not confident in deep waters.
DeKay recommended the pool be oriented in a way that the shallow end is at the exit to the changing rooms. The council agreed with his recommendation and asked WMS to make this change in their drawing.
A separate but related concern both the council and the audience had was about the parking situation. Both would like to see access from a parking lot rather than the street as it is now, citing easier and safer access for handicapped persons and children being dropped off.
Councilor Jason Hartmann recommended that there be 15-minute parking or drop off zones in the parking lot that could be utilized as parking for teachers during the school year.
This conversation drove the meeting to the ultimate, albeit, confusing point: the designs being presented to the council and public right now could ultimately be changed by the governing body of the Metropolitan Park District if the district succeeds on the ballot in November.
Commented