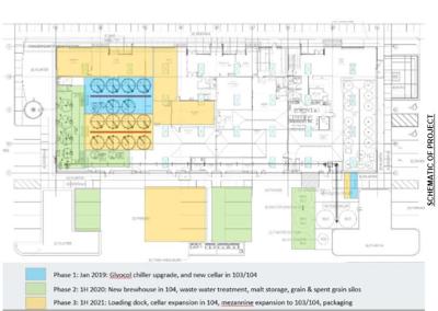
Proposed design of the pFriem expansion project, provided by the company to the Port of Hood River. The schematic color-codes the three construction phases, with phase one anticipated to start in Jan. 2019.
Proposed design of the pFriem expansion project, provided by the company to the Port of Hood River. The schematic color-codes the three construction phases, with phase one anticipated to start in Jan. 2019.
pFriem is embarking on a series of improvement projects to expand its brewing capacity in the Halyard building, and the Port of Hood River has agreed to support its expansion efforts.
During its Dec. 18 regular meeting, the port commission approved a Memorandum of Understanding (MOU) — an official, non-binding agreement that identifies and confirms the intent of two parties — in support of pFriem’s growth in the Halyard building.
pFriem has been a sole tenant of the Halyard Building, located on Portway Avenue near Eighth Street, since 2012 and has occupied the entire building since 2015, the port stated in the MOU.
“pFriem’s business is growing and additional brewing capacity, support facilities and staffing are needed to facilitate this desired growth,” the MOU stated.
According to a project schematic included in the MOU, the improvements will take place in three phases spanning from 2019 to 2022: The first phase of the project will start in January 2019, with an upgrade of their Glyocol chiller and a new cellar; phase two starts in the first half of 2020 and involves construction of a new brewhouse, waste water treatment, malt storage and grain and spent grain silos; and phase three starts in the first half of 2021, involving construction of a new loading dock, cellar and mezzanine expansions and packaging.
While the MOU is nonbinding, it is intended to serve as an outline for binding agreements going forward, and as a sign of support from the port.
“We support pFriem and this project, and we want to show that to them,” said Commission President Hoby Streich.
While the commissioners agreed that they were in full support of pFriem’s desire to expand, several commissioners expressed concerns regarding the necessary parking spaces and what the expansion would mean to any development projects the port may decide to pursue in the future.
“I’m very supportive of pFriem and this project in the Halyard building, but I want to make sure we’re not stipulating anything we don’t need to at this time,” said Commissioner Ben Sheppard. While he acknowledged that the agreement is non-binding, he said, “We’re saying we’re going to do something, I don’t want to say something and not do it.”
As part of the growth, pFriem has requested 26 parking spaces on port property in order to meet the City of Hood River’s permit requirements associated with the projected increase in employment.
The MOU also states that the port will attempt to identify space for future pFriem expansion within the next five years — an edit from a previous draft that was changed to remove language specifying that the port would try to identify additional space for pFriem on the waterfront.
During the Dec. 18 meeting, Commissioner Brian Shortt expressed concern about where these 26 parking spaces would be and suggested that the city and county should be asked to look at their on-site parking requirements for businesses, given the parking issues and the availability of public transit. “There needs to be some flexibility,” he said.
The MOU included a statement that said the port “may relocate parking spaces to equivalent location with three-month notice, including a port owned parking structure,” which the commission has discussed theoretically as a potential development option.
Anne Medenbach, the port’s development and property manager, said that pFriem has agreed to be flexible with the location of the parking spaces and that the city said that they would support flexibility in this case.
Streich confirmed with Medenbach that pFriem is willing to accept that flexibility and the risk associated with it before moving forward with a motion to approve the MOU.
“For a business that is less than seven years old, pFriem has followed an incredible growth curve. We are now over 80 employees strong and have developed plans to continue our growth,” said Ken Whiteman, pFriem co-owner, “Looking forward to the next several years, we’re preparing to make significant investments in the Halyard building and the equipment needed to more than triple our production. With the signed MOU in support of this expansion, the port has helped pave the way for this growth. We’re very thankful for their support of our business, our employees and the overall economic development of our region.”
Commented